新品速递 | 松下自动门地埋式平开门机-首发!
文章出处:
人气:发表时间:2022-08-23 11:14
轻 盈 于 芯
简 洁 于 形

·N S P D S 1 1 5 0·
产品细节
·N S P D S 1 1 5 0·
功能特点
·N S P D S 1 1 5 0·
遥控器模式介绍
·N S P D S 1 1 5 0·
产品配件
·N S P D S 1 1 5 0·
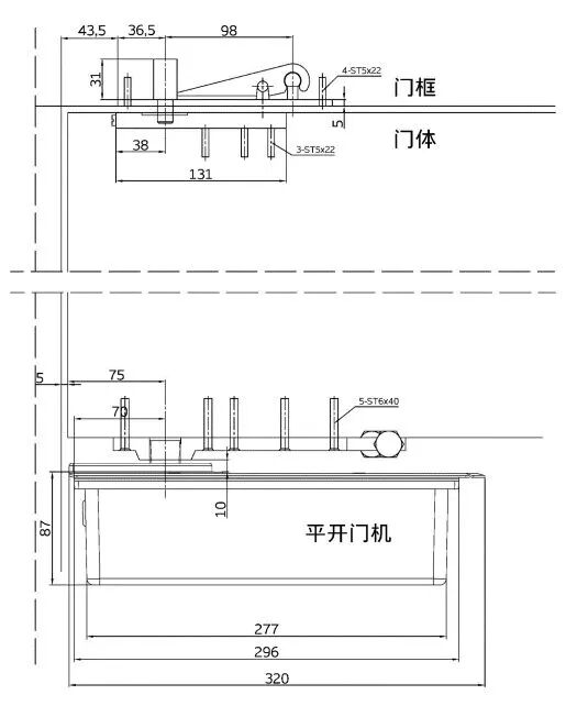
安装示意图
·N S P D S 1 1 5 0·
产品参数
·N S P D S 1 1 5 0·
权威认证

此文关键字:
同类文章排行
- 新品速递|松下重叠自动门系列重磅上市
- 新品速递 | 捷力尽意,帝造臻品——松下捷帝100Slim
- Panasonic自动门洁净行业范例—青岛应急保障医院项目
- 松下自动门打假动态:树立正品意识 抵制非法货源
- 新品速递 | 松下自动门地埋式平开门机-首发!
- 松下电动开窗器,打开8月的窗,笑迎初秋之风
- 松下自动门打假维权一直在行动!
- 松下电动开窗器—一键开关窗 阳光普照夜夜平安
- 自动门维修/北京自动门维修/北京松下自动门维修
- 松下自动门打假:黑暗的角落需要阳光,打假我们一直在路上





















